图知网
搜索
首页
热门推荐
图片分类
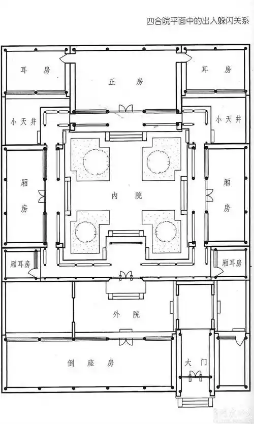
大建筑里的小故事——献礼百年实小!我们的四合院
下载原图
相关图片
四合院平面设计图大全
几张动图就把"四合院"讲清楚了!
带你参观古往今来的四合院
【摘录写文参考】明代四合院的格局
占地16x39一层自建四合院设计全套施工图
新中式风格传承经典之美5款农村四合院设计大集合
为你推荐
fila代言人张艺兴##fila mix主理人张艺兴##fila时尚印花
又到了春季,北方大地萌动,随着一场场春雨的到来,广阔的蒙古草原即将
赵丽颖邢昭林月七cue颖宝合集持续更新中
挖孔屏壁纸
心脏手术再创新高——胸腔镜下二次三尖瓣成形术获得成功
可爱的小狗狗简笔画
炸裂女神被爆整容遭全网谩骂
泰国风大象