图知网
搜索
首页
热门推荐
图片分类
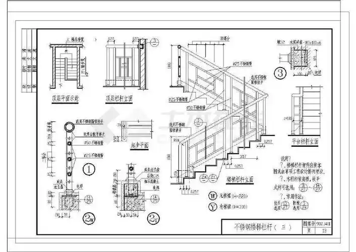
楼梯大样图
下载原图
相关图片
复式楼梯装修效果图_洋房楼梯装修设计图_楼梯装修施工图
土木工程毕业设计楼梯建筑图
楼梯详图-江西省乡村特色农房设计-图片
建筑图纸cad-lt3,lt4楼梯详图(商务公寓大楼)
44个普通楼梯节点详图-建筑节点详图-筑龙建筑设计论坛
幼儿园设计平面图 - cad幼儿园建筑图纸下载,免费幼儿园cad施工图
为你推荐
中秋必备家常菜
可爱吃鸡头像(吃鸡可爱萌图)
图6. "飞霆"号鱼雷炮艇模型
重明鸟是古代神话中的神鸟,形状像鸡,叫声如凤,两目都有两个眼珠,所以
《致敬白衣天使》
儿童套餐
csgo地图dustⅡ全分析(1)地图理解篇 - csgo地图介绍 - 实验室设备网
超甜可爱仙女味小姐姐头像高清好看的小姐姐超甜真人头像图片