图知网
搜索
首页
热门推荐
图片分类
剖面图
下载原图
相关图片
楼层剖面图
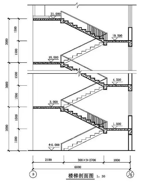
(图62楼梯剖面图)了解楼梯间各楼层平台,休息平台面的标高:楼层平台
某多层建筑立剖面图
260-320 plans_sp section1剖面1.jpg
综合楼建筑剖面图
剖面图2
为你推荐
微信头像彭于晏
张若昀古装造型好富贵,过分帅气了吧[比心] 大侦探重回古代当老板名副
实验室装修设计标准
简约设计风格高清桌面壁纸
为什么很多人说tnt严浩翔最帅但我get不到他的帅气? - 知乎
长脸女生剪什么发型好看 盘点6款长脸空气刘海短发造型图片
3d游戏人物角色女主角模型
关键词:婚宴场景舞台布置 场景 布置 酒店 婚礼 白色 酒店设施 室内