图知网
搜索
首页
热门推荐
图片分类
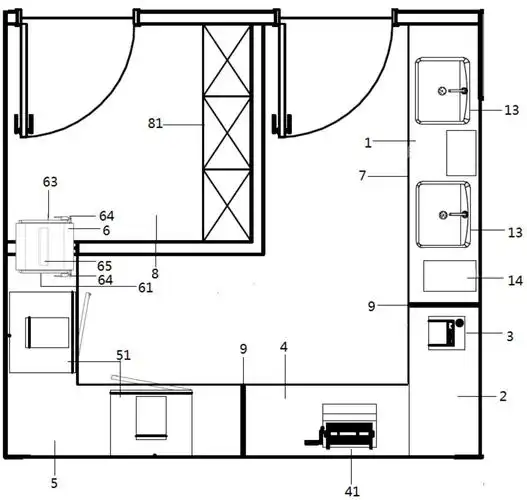
一种牙科消毒室的制作方法
下载原图
相关图片
消毒供应室整体解决方案(含设备清单)
消毒供应平面图.jpg
消毒供应室整体解决方案
cn212067238u_一种牙科消毒室有效
牙科诊所消毒区设置标准
消毒供应室 平面图改造
为你推荐
angelababy 20岁出演的《矮仔多情》
非你莫属
游京吉他谱_海伦_c调_图片六线谱_【无限延音版】-摇摆号
99朵玫瑰结婚贺卡99朵玫瑰贺卡
纤雅洁高危药物标识高警示药品标示医院药房柜abc分级警示标签贴牌
夏季太行山脉(河南段)风光纪实特价摄影团(正在报名)
联拍在线-[ 清康熙 洒蓝釉青花开光花卉图长颈瓶]
曾主唱"日本最佳动画主题曲" 日团凛冽时雨主唱tk 12月首度在沪开唱