图知网
搜索
首页
热门推荐
图片分类
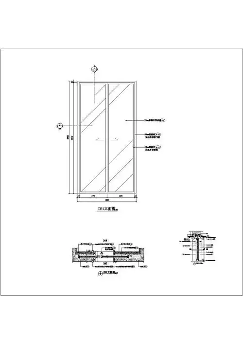
厨房玻璃推拉门详图图片
下载原图
相关图片
玻璃推拉门节点详图cad图
室内设计施工工艺031外滩w酒店客房卫生间的玻璃推拉门节点解析
各种铝合金玻璃门窗及大样结构平开门平开窗推拉门系列cad节点图
某市厨房玻璃推拉门装修设计节点详图
厨房玻璃推拉门详图570*2270*50mm_cad图纸下载-土木在线
厨房玻璃推拉门详图
为你推荐
自然卷曲bob短发 温柔减龄实力抢镜_波波发型 - 美发站
上海土地面积多少平方公里及人口多少(世界一流城市上海,为何发展这么
冷笑动漫简笔画
宋慧乔优雅迷人时尚杂志写真大片
宋威龙清爽帅气壁纸_鲜肉男神宋威龙
pc817集电极发射极电压v 与发光二极管正向电流if关系
弹丸论破 忌村静子
鬼灭之刃蜘蛛母亲台词鬼灭之刃蜘蛛一家2022已更新今日推荐