图知网
搜索
首页
热门推荐
图片分类
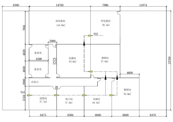
豆制品车间平面图
下载原图
相关图片
出口食品厂车间平面图
已经成功通过sc审查的食品车间平面布局图系列
食品qs食品调味品加工车间平面图2010
自己设计的熟食车间布局平面图 - 工厂设施设备 - 食品论坛 - powered
a1-全区平面布置图
食品工厂杀虫剂使用与管理
为你推荐
女孩金馆长换脸竖中指gif动图_动态图_表情包下载_soogif
景观雕塑今天价格行情查询-加工户外镜面不锈钢造型小品雕塑-阿里巴巴
淡雅四尺整张,保证纯手绘.#山水画 #感受国 - 抖音
城堡呀哈哈位置图
古风女立绘
原创终极斗罗:唐三的昊天锤没有遗传给蓝轩宇,极有可能是遗传给他了!
斗罗大陆:异世界唐门玄天宝录六奥义,你知道哪些?
英短黄胖子奶黄包