图知网
搜索
首页
热门推荐
图片分类
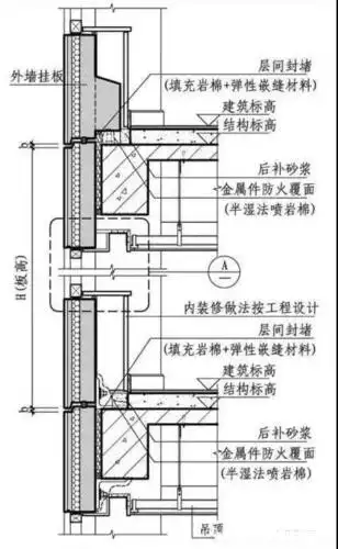
剖面图一
下载原图
相关图片
墙身剖面图大样图
剖面图
电视墙竖向剖面图
形象墙剖面图[三洋电视]
几种外墙挂板的墙身剖面图示例
预制构件剖面图2
为你推荐
q版闺蜜头像,团头,可爱
世界10大恐怖袭击现场照看完毛骨悚然
首页 新闻中心 > 新店开张 玻璃纤维网格布,玻纤网格布,玻纤网眼布
一眼就心动的优雅气质女生头像95
神奇宝贝拟人 61 花舞鸟(轻盈轻盈风格)
运动户外>运动服>运动t恤>乔丹(qiaodan)>乔丹(qiaodan)运动t恤>800
美赞臣荷兰原罐 enfamil安婴儿婴幼儿奶粉 港版1段 900g
又到建房好时节,30套超火户型三层农村自建房 ,每