图知网
搜索
首页
热门推荐
图片分类
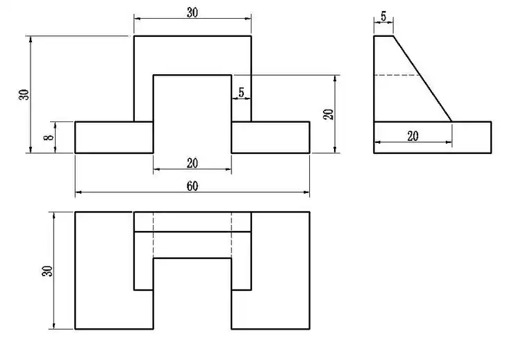
4 从三个方向看物体的形状 课件8(北师大版七年级上)ppt
下载原图
相关图片
29.2三视图第二课时
三视图怎么画
1.3 三视图的形成及投影规律
若干个小正方体所搭成的几何体的示意图,请你画出这个几何体的主视图
3.1 物体的三视图(1)ppt
1, 问题:根据物体的立体图判断,哪一组三视图是正确的.
为你推荐
960_1707竖版 竖屏
福州花海公园万朵向日葵花开
路9号南通大学南通大学崇川区南通大学主校区南通大学教学楼-9号楼
今天上午,冠录在他办公室热情接待我.我们喝茶聊天,十分高兴.
恐龙慈母龙简笔画
方楚雄牛纸本立轴
张张都能做壁纸 《gt赛车6》海量图赏
汉草植洁面包装 洗面奶包装