图知网
搜索
首页
热门推荐
图片分类
悼亡句子(简短的悼念句)
下载原图
相关图片
悼念逝者安息的句子悼念逝者的句子2022已更新今日推荐
siemens ptm si management tool i期项目需求&设计总结
清明节的哀思
原来长大后就是一场又一场的告别 奶奶,愿您一路走好 …… 承 - 抖音
悼念父亲_悼父亲_悼念父母
致敬英雄缅怀同胞厦门公交组织所属单位开展鸣笛哀悼活动
为你推荐
励志句子图片壁纸励志英文句子壁纸
◤绘画提升班◢ 周海缇12岁
力帆k29正式上市,售价13980元,采用复古运动风格,拥有皮带传动_车家号
山河令温客行周子舒高清壁纸 - 知乎
路虎揽胜行政加长版改装航空座椅多少钱
公文格式-便签_第1页
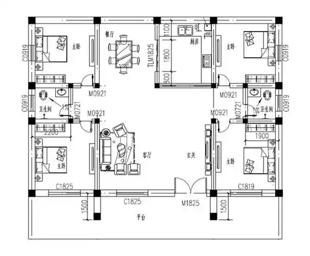
两款一层别墅设计图端庄大气经济实用
震惊!村民无意挖出千年人形怪物