图知网
搜索
首页
热门推荐
图片分类
17岁吉他谱 刘德华-十七岁六线谱c调
下载原图
相关图片
17岁简谱乐谱
17岁(十七岁) 刘德华 歌谱简谱网
十七岁
十七岁吉他谱-1
十七岁
刘德华17岁吉他谱
为你推荐
火影忍者手游首付50抽能出多少张腿影(黑土)
一期一会 最明朗可爱的你7815 下次见 @时代少年团-刘耀文
励志图片-堆糖,美好生活研究所
绝对好味97双拼饭 满满维c蛋白质.绝对好味97双拼饭 满满 - 抖音
sans的其中一枚龙骨炮
给工人使用电动工具的帮手
宅家欣赏课——《长江之歌》
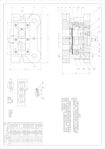
冲压模具设计图纸