图知网
搜索
首页
热门推荐
图片分类
门套通常由密封条,门档条,门框,单侧或双侧门套线组成,如示意图一所示
下载原图
相关图片
传统的室内木门框,在装修中也被称为门套,是由门套板和门套线组成
常见门套结构
舒平精工机械械为您科普如何快速优质地生产门套线
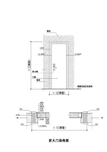
防火门门套大样图
解析3种常见木门及门套的构造做法
检查门套整体与地面是否垂直,门套顶板与两立板的两个角是否直角.
为你推荐
佟丽娅 优雅的气质,这机长走路带风超帅,太爱了 #爱的厘米
nasa档案旧火星图像引起新一代太空爱好者注意 展示火星"双峰"景象
沙溢全家生活近照,胡子拉碴头发变多了,大儿子开始教小儿子认字
一批个性精美头像
壁纸 纯色系
日本珍珠品牌mikimoto御木本vi设计
杜若溪绝美写真集
臻昊新款小龙虾打包盒一次性锡纸盒金色铝箔小龙虾外卖盒1130ml