图知网
搜索
首页
热门推荐
图片分类
绿健生态农庄嬉水乐园
下载原图
相关图片
宁波浅水湾农庄乡村欢乐世界
宁波浅水湾农庄乡村欢乐世界
宁波浅水湾农庄乡村欢乐世界
宁波浅水湾农庄乡村欢乐世界
不过,昨日,东论网友@热心市民阿乐 却爆料,宁波·浅水湾乡村欢乐世界
【沈楼大宋水上乐园开业大吉!免费玩儿又双叒叕来了…】
为你推荐
以色列:海法巴哈伊空中花园…位于以色列海法的巴哈伊花园,被称 - 抖
图林青霞东方不败高清图片欣赏回顾其最美银幕形象
韩国女团exid以「骨盆舞」《up & down》爆红後,去年趁胜追击连发两张
盛夏小清新植物小花桌面壁纸
大班音乐活动《鸭子上桥》ppt课件
三只小熊bear
菜肉馄饨面
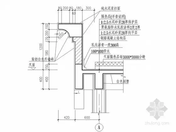
[节点详图]女儿墙节点大样详图