图知网
搜索
首页
热门推荐
图片分类
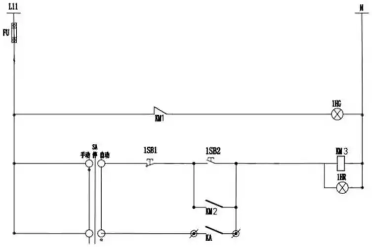
手动自动停止转换开关接线图片
下载原图
相关图片
一台3干瓦电机,手动和自动,还有故障灯和时控的连接图
上限停止运行参考图如下 sa自动/手动转换开关.st手动启动stp手动停止
电源自动切换形式有哪些?
一个接触器3个按钮开关如何实现自锁控制和点动控制?
金属按钮开关接线图
一种手动/自动切换实现控制照明系统开关的装置的制作方法
为你推荐
马嘉祺和妈妈有多有爱,宋亚轩粉丝别再做伤害家人的事情了
郑容和帅气慵懒风居家写真桌面壁纸
超实用7515通过狗便便93判断狗狗健康状况9315
建筑集水坑重型污水池自耦提升污水泵大功率地专用耦合藕合装置
中国戏剧 梅兰芳代表作《贵妃醉酒》剧照
2018/10/三七花今年开的很漂亮哦
西安华山旅游
屋顶发现巨型蚊子,拍摄记录下巨蚊的外形特征,巨蚊翅膀很长,个体很大