图知网
搜索
首页
热门推荐
图片分类
建筑工地洗车机全自动洗轮机工地洗车台工程洗轮机工地洗车机
下载原图
相关图片
各位前辈,请问这种工地洗车槽怎么算造价呀,大概是这个样子
工地洗车
建筑工程洗轮机工地洗车机全自动洗车池大型车辆冲洗平台洗车台槽 80
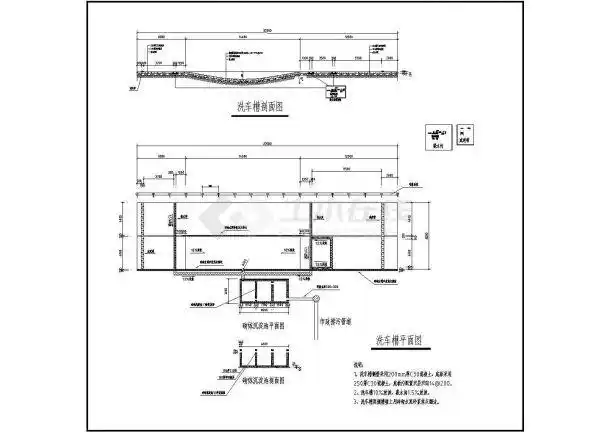
工地洗车槽施工图下载【id:399532666】
某建筑工地洗车槽建筑设计cad图纸
施工现场洗车池施工图(带喷淋系统,有cad链接)
为你推荐
女明星的素颜差距能有多大?鞠婧祎起床就是完妆,沈梦辰判若两人
解放路4号家园——院内院外的故事
152反季穿搭适合小个子的橙色圆领卫衣
wechatimg1724.jpeg
直升机救援演练
百分九 范丞丞亲笔签名照片10款定妆照现货 npc周边
素描#猫 #步骤图#临摹 原作者:画画的橘子 - 抖音
搜图123提供独家原创河北省地图素材下载,此素材图片已被下载3次,被