图知网
搜索
首页
热门推荐
图片分类
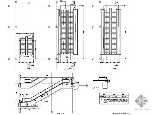
自动扶梯设计cad图纸
下载原图
相关图片
自动扶梯(非标,梯级宽600,梯级宽800,并联,提升4.4米)
自动扶梯平面图
自动扶梯详图
奥的斯自动扶梯大样图cad工程图纸免费下载
自动扶梯的构造.jpg
自动扶梯
为你推荐
北温泉的太阳鸟
日本代购御木本mikimoto21圣诞幸运四叶草珍珠吊坠项链18k金
清新绿色系动漫闺蜜头像!
day4 安吉-中南百草园
武磊伤情曝光 肩锁关节脱位触目惊心
海上都荟上海华发售楼中心华发海上都荟楼盘详情华发海上都荟欢迎您
食品安全主题绘画 线稿 可下载.#食品安全 #主题绘画 #手 - 抖音
里开了"暗门"的新鲜感,还能提升客厅的整体造型感,有美化空间的效果