图知网
搜索
首页
热门推荐
图片分类
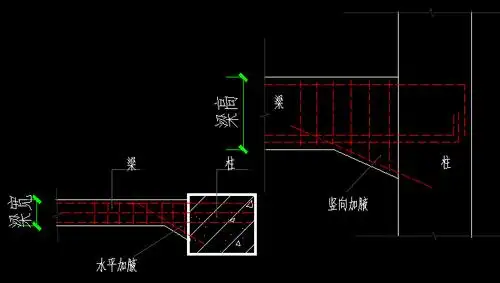
梁加腋钢筋设置
下载原图
相关图片
梁水平加腋的上部两个筋放在模板面上还是下
[分享]加腋的梁板图资料下载
怎么区分水平加腋梁和竖向加腋梁?
框架梁竖向加腋构造
梁水平加腋配筋
请问这是什么情况梁加腋无法从柱边上开始而是从承台边
为你推荐
今个儿七夕 偷拍几张老公背影91祝大家七夕快乐9393!
春季中脚奶白菜种籽孑阳台易种蔬菜种孑盆栽四季乌塌菜小白菜种子
石狮市地图行政区划福建省jpg电子版高清素材图片2023年
酸汤鱼片这样做,简单方便汤鲜味美,比饭店的还好吃-度小视
三潭印月br西湖十景
苏绣摆件手工双面绣刺绣台屏桌面摆台真丝纯手工艺品中国特色礼品好不
【宝马7系2013款730li 豪华型钥匙汽车图片-汽车图片大全】-易车
50%的职场人败在不会说话上,与领导,同事,客户沟通的二大心法