图知网
搜索
首页
热门推荐
图片分类
男生头像 #ai绘画 #动漫头像 #钢琴 - 抖音
下载原图
相关图片
动漫美图丨你与优雅美少女只差一架钢琴 弹钢琴的少女特辑
唯美漫画风美丽的女孩优雅的弹钢琴创意插画
动漫,二次元,唯美,钢琴,紫色
钢琴,矢量,在白色背景上钢琴
动漫壁纸钢琴特辑美图赏析
女孩弹钢琴画3440x1440动漫壁纸
为你推荐
firstkiss简谱不能说的秘密firstkiss简谱
李炳华(小学组)《网络视频温暖叙亲情》组照过完中秋
巴西知名混血美女朱莉安娜-纳努(juliana nalu)被曝频繁与老汉互动
这个是什么树子
卡通可爱上课英语字母老师讲课插画素材png
youseiraws猫物语黑nekomonogatarikuro14bdrip1920x1080x264flac
折纸王子教你折鲨鱼4折纸
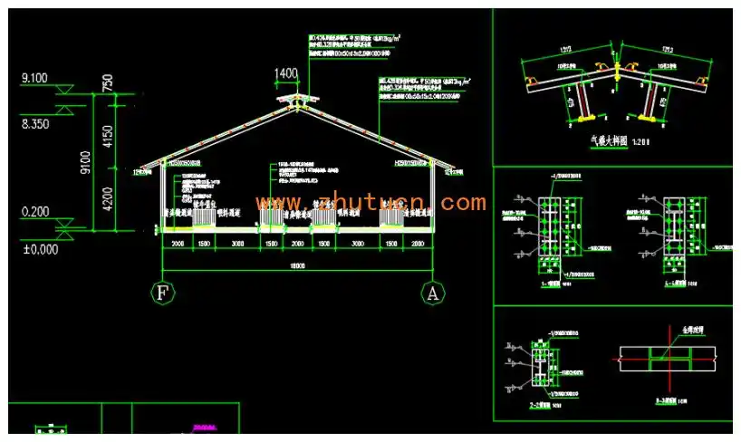
某犊牛舍建筑及结构施工图纸