图知网
搜索
首页
热门推荐
图片分类
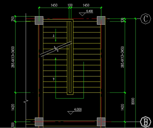
请专业人士帮我画出楼梯图.一定要专业.平面图,立面图
下载原图
相关图片
二层楼梯平面图
二层楼楼梯平面图
楼梯二平面图
建筑图纸楼梯平面图这个楼梯上下指示标的对吗
前辈们好这个二层剪刀楼梯平面图中有两个ct两个dt广联达该怎么画
双跑楼梯平面图
为你推荐
女孩简笔画全身画女孩简笔画全身
告别剪刀手,这8个经典好看的拍照姿势,让你拍出各种美
非诚勿扰(《非诚勿扰》欺骗了多少观众?
甜蜜情侣爱情插画高清手机壁纸
今晚,双方将继续在广东男篮主场进行第四回合的较量.
简笔画数字动物联想
冠厅卡 厅头像
海鲜餐厅菜单模板矢量素材