图知网
搜索
首页
热门推荐
图片分类
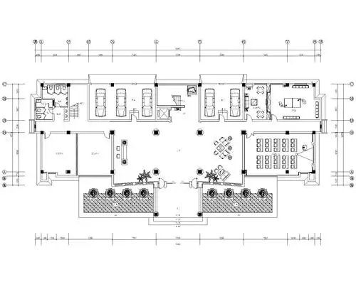
1一层平面布置图
下载原图
相关图片
综合办公楼一层平面布置图
一层平面图-艾默生南京办公楼第14张图片
办公楼全套施工图 效果图 资料内容包含:材料表,设计说明,平面图(一层
识读下面某办公楼的一层平面图可知散水的宽度为mm
01-一层平面图_1
一层平面图
为你推荐
疯狂的赛车
2022年的2月,女演员奚望一个人回家过年,母亲茹萍问女婿在哪儿?
可爱动图★gif 源于各处 侵权删除★可爱★彩色★沙雕★搞笑★治愈
金晨街拍大片,身着黑色皮衣搭配黑色皮裙,烈焰红唇倍显性感.
现代人的崩溃是默不作声的,要学会释放内心的负面情绪
chara君昌插画图片壁纸
又丑又搞笑的头像真人真人被恶搞的样子
吴亦凡 kris 手绘漫画 素描卡通头像偶像男明星演唱会造型古装古风