图知网
搜索
首页
热门推荐
图片分类
专业提供复合型导电橡胶条 可定制各种硅橡胶条
下载原图
相关图片
紫外光uv固化导电胶耐低温柔韧低tg
成都宝源 导电橡胶板 弹性强,导电性好 民爆行业铺设地面的首选
导电橡胶
gba导电胶 game boy导电橡胶配件 gba按键导电胶垫gba按键胶
适用于yamaha雅马哈电子琴导电橡胶kb280kb220psrs550psre313琴键胶垫
导热硅胶
为你推荐
"京圈太子妃"白百何:因一阳指毁星途,逆袭资本投1万翻8000倍|娱乐爆料
原创颜丹晨生日晒美照穿印花西装藏不住曲线感单手叉腰好飒一女的
决定德国兴衰的容克贵族是怎么回事1848年2月21日恩格斯发宣言
四驱兄弟-中国光蝎队-库伦号(光蝎号,巨龙号)-飞檐走壁无所不能.
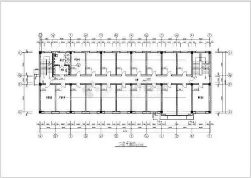
本资料为:某学生宿舍楼建筑图整套cad设计图,包含:平面图,立面图
中式石拱桥设计su模型下载|空间|景观设计|素模网 - 原创作品 - 站酷
lol剑魔动漫头像lol头像大全高清图片剑魔系列
工作人员管理制度公司工作制度楼房制度牌