图知网
搜索
首页
热门推荐
图片分类
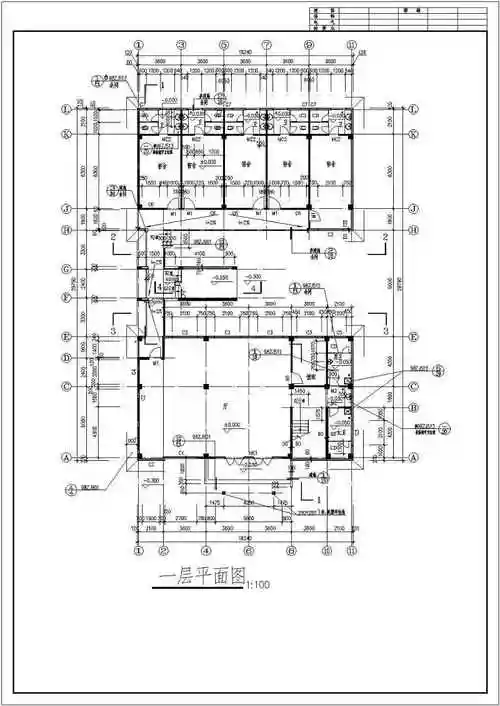
多层住宅建筑施工cad设计图纸
下载原图
相关图片
吊车图纸
图4-7 某工程桩基础施工图
某地综合楼建筑施工全套图共14张
土木建筑施工图
67某八层坡顶多层住宅楼建筑施工图施工图下载
3,施工图
为你推荐
女子色诱老人趁机盗窃财物 流窜至祁东作案落网
「美发图鉴」2021年最新女生烫发发型,减龄显气质的最佳选择!
中年女装秋冬装新款毛呢外套气质妈妈秋装大衣中老年中长款风衣潮
风情侣比心元素1322552原创比心红色爱心活动爱心义卖宣传海报6055
nba篮网队球衣壁纸
分手征兆这些废话突然消失了
名品海鲜汇-门面-环境-门面图片-广州美食-大众点评网
【图】【300画画】手绘卡通版"闪300"女骑士里咪,小哈雷谁能不喜欢!