图知网
搜索
首页
热门推荐
图片分类
某三层徽派民居楼建施cad图共五张
下载原图
相关图片
徽州民居文化视觉元素图形符号 - 班墨人家 - 班墨人家的博客
[分享]在这里过着最纯粹的乡野生活
某徽派民居建筑施工图纸 (cad,5张图纸)
南京传统民居与江南各地民居差异的比较与思考
古徽州与老北京民居建筑及文化异同 北京中医药大学党委统战部
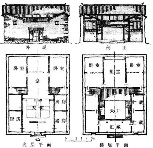
一,平面布置徽州民居的基本平面是以天井为中心展开的方形的空间布局.
为你推荐
蔡徐坤简笔画教程
文武之道,一张一弛.#潮图壁纸 #朋友圈壁纸 #高清壁纸 # - 抖音
读图|彭泽县棉船镇油菜花海美如画
爱情说说温暖的阿狸精美配图
伤感流泪动漫女头像伤感的头像女生绝望哭泣动漫图片
李一桐半妖倾城李一桐安利楼李一桐
耐克nikeairjordan6hareaj女款白红彩蛋兔八哥篮球鞋384665062375
经典情怀丰田lc100黑武士持续更新