图知网
搜索
首页
热门推荐
图片分类
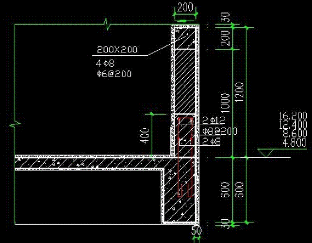
反梁能承重吗
下载原图
相关图片
这种反梁板怎么设置并且梁底比板顶高
屋面反梁结构
栏板,窗台板下反梁套定额
反梁与正梁的承重区别是什么
反梁
屋顶边梁是反梁,构造上要注意些什么,抗剪强度与普通梁有什么区别?
为你推荐
奔跑的小学生人物奔跑的小学生人物简笔画怎么画步骤教程
窗边美女孤独的年轻女子在家喝酒.女性酗酒.
回老家看爸妈的戏份素颜状态9月元哥录制收官后杨洋先去敦煌拍了刚刚
机械哥斯拉简笔画绘画过程!爸爸妈妈画的vs我画的,谁更厉害?
2018新品 质感开边珠牛皮男士皮带
家里有一棵种了多年的石榴树,之前一直没有好
喀什古城灯光秀闪耀夜空
原创这次水灾映射相声圈现象德云社集体捐款姜昆主流相声集体失声