图知网
搜索
首页
热门推荐
图片分类
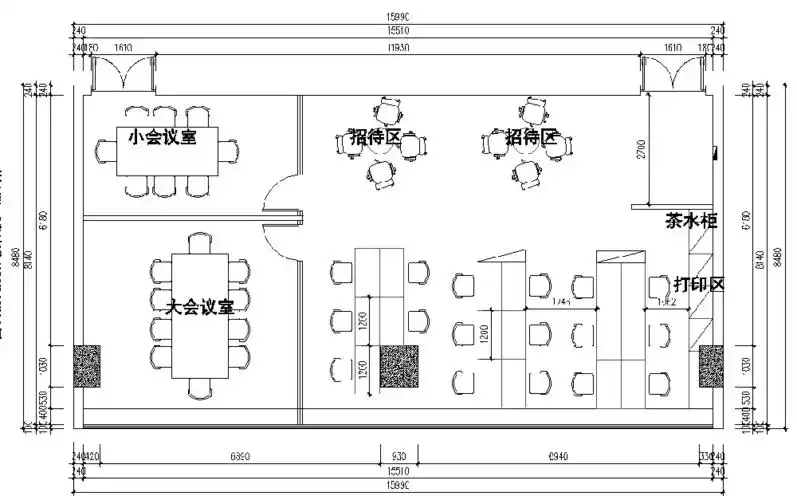
microsoft excel 怎么做平面图?
下载原图
相关图片
200平办公室布局平面图
fak总监黄雨现代风格办公室案例分享
论坛 69 方案 69 公装平面 69 l型办公室求好方案
8款小办公室布局图 办公室平面图样板案例
公司办公室布局平面图
平面布局图
为你推荐
美丽的荷兰风车
【相约安徽·向春而行】春来绩溪寻"味""道"|龙川_新浪财经_新浪网
这一位女生发型扎发也是经过简单的编发处理的,先把头发编成一个小
新密粘土砖厂家金三角耐火材料
让盟军胆寒的虎式坦克,为何最后停产了?
蕾丝门帘隔断帘免打孔家用防蚊客厅纱帘卧室厨房卫生间雪纺半帘夏
新中式实木入户屏风客厅隔断玄关酒店办公室现代顶天立地栅栏座屏
顾家 商标公告