图知网
搜索
首页
热门推荐
图片分类
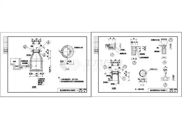
解读消防水池取水口井做法
下载原图
相关图片
消防井实际上是一个总称,指的是为城市的地下基础设施供电,排水,维修
给水井消能井大样图
某地室外消防取水口井做法cad
室外消火栓图集
某消能井大样图
塑料消防栓井以高密度聚乙烯为主要材料,用于保护地上式消火栓和水炮
为你推荐
陈意涵estelledt林舒舒
鸭舌帽拍照女生头像
new balance
书法家张仲亭先生作品欣赏.#张仲亭书法作品专营#名家字画#张 - 抖音
全球古典吉他精品(图片)
澳大利亚种族灭绝真相:塔斯马尼亚人被灭族,遗体成标本卖门票
初次聊天开场搞笑段子
恰同学少年毛笔字图片素材