图知网
搜索
首页
热门推荐
图片分类
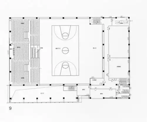
整个体育馆的平面图,这个小细节很好,帮助大家瞬间找到自己所在位置.
下载原图
相关图片
三层框架结构室内体育馆结构设计施工图含建筑图
首都师范大学体育馆
体育馆分析ppt
恭祝长春荃运荟家庭运动馆盛大开业
体育馆内做了声学处理后回声还是很大,这是什么原因啊?
综合体育馆设计图纸
为你推荐
草书3500字标准草书字帖珍藏版
一起来学八段锦吧
效果图展示介绍:这款设计图最大的特点就是带土灶房的二层房屋设计
摸到胸部有硬块,难道是乳腺癌?
当金刚遇见了哥斯拉笑到最后的居然是
癌症患者总觉得累癌因性疲劳千万别忽视
揭秘中国十大灵异图片,灵异女鬼的真相到底是什么!
来自杭州设计师haodmanc4d人物作品inshaodman