图知网
搜索
首页
热门推荐
图片分类
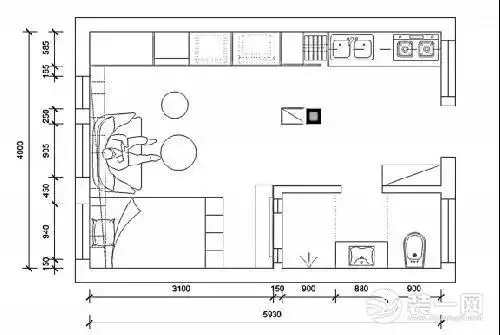
125平米的房子这样装修面积大了1倍,装修只花25万元!
下载原图
相关图片
祥泰公寓1室0厅1卫25平米装修案例
sketch up 草图大师 25平米 小户型 单身狗之家设计建模推敲
25平方2孩之家有经验的小户型设计师看过来
仔细一看,我觉这个是我心中的完美户型,满足了我所有的想法.
我家房子厅很小,卧室要兼具卧房和客厅的功能,卧室15平米,长5宽3,我
6平米的小户型复式公寓的装修设计案例,面积虽然不大,但是
为你推荐
《致命玩笑3》正片—美国—电影—优酷网,视频高清在线观看—又名
黄子韬flop了?
李嘉欣壁纸专辑28 - 1920x1080
壁纸 花 桌面 624_1040 竖版 竖屏 手机
分发碗筷卡通专题模板-分发碗筷卡通图片素材下载-我图网
26个英文字母印刷体与手写体对照表及练习
sk糖王翻糖人偶作品束缚
粉色猪头