图知网
搜索
首页
热门推荐
图片分类
简笔画雪花怎么画简笔画雪花怎么画儿童简笔画
下载原图
相关图片
画雪花简笔画图片大全 画雪花简笔画图片大全简单
雪花的简笔画 雪花的简笔画简单
雪花简笔画怎么画图片教程
雪花怎么画简笔画好看 雪花怎么画简笔画又漂亮
卡通雪花图片简笔画雪花卡通的图片简笔画图片大全(雪花简笔画简单又
简单的雪花简笔画
为你推荐
2021最新早上好图片带字表情包祝福祝大家天天好运平安健康幸福
67夏超超学围棋
手推式无动力双刷扫地机 物业小区打扫卫生手推扫地机
许佳琪 蛇蝎美人上线##许佳琪萌探4飞行嘉宾
搞笑敲锣打鼓表情
金刚板橱柜门阳台一个柜子也是做的这种晶钢板的就是分段的太多了翻车
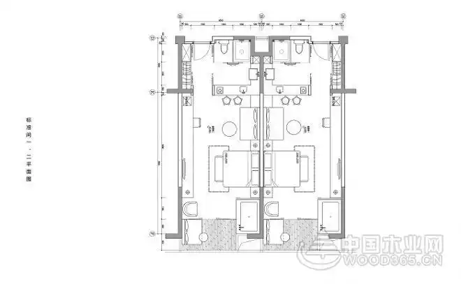
8款宾馆标准间平面图
申论热点素材燃灯校长张桂梅