图知网
搜索
首页
热门推荐
图片分类
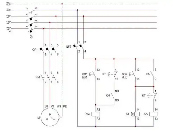
请问做一个延时控制继电器 需要哪些器件 基本电路图是怎样的 谢谢
下载原图
相关图片
电动机延时开机的间歇运行电路
25,零基础学电工-按下停止按钮电动机延时停止电路(仿真图)
求电机延时启动和延时停止控制电路图
手动旋钮控制电动机延时启动电路
做了个延时电路
延时电路是怎么实现延时的
为你推荐
明星高清手机壁纸大全_3g壁纸
头像女生长发海边意境唯美
李宁音速8low白红435码配盒下地12次
男生头像 古风头像 长发男生 也可以这么美,确实有点逆天.
一张睡姿变化图微妙反映男女婚姻生活中感情的不同阶段
其中108张是四川麻将,只有1-9条,1-9万,1-9筒各4张, 28号麻将尺寸:高
刀郎前妻女儿40天后跑路,功成名就后找上门
猫和老鼠小杰瑞