图知网
搜索
首页
热门推荐
图片分类
一年级数学下册‖百位表规律总结
下载原图
相关图片
一年级 #数学 必会百数表规律,保存打印下来给宝贝练练吧! - 抖音
百数表及规律
一年级数学下册,第四单元百数表的规律口诀 #抖音图文来了 # - 抖音
百数表 1|2|3|4|5|6|7|8|9|10| 11|12|13|14|15|16|17|18|19|20| 21
百数表图片 96 百数表,就像.@糖果的短句的动态
百数表是一年级下册重难点!务必要弄会喔!其实好好看看这张表
为你推荐
雷锋简笔画
女生aj鞋搭配吊带裙(白色aj高帮鞋搭配什么裤子)-鞋子迷
再拍两张##华晨宇加盟双11惊喜夜##华晨宇一个月才回吴彤微信
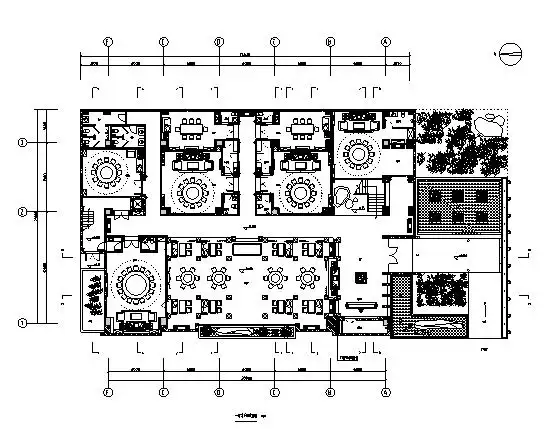
[郑州]中式五星级酒店餐厅室内空间设计施工图(含效果图)
阳光383638393231女生头像
奥特曼简笔画.一起来画简单的奥特曼,快来试一试吧!不信你学不 - 抖音
拼装积木小动物拼图小黄鸭小猪熊猫摆件礼物成人微小颗粒益智玩具
麻辣兔头