图知网
搜索
首页
热门推荐
图片分类
《真三国无双6:猛将传》美化mod分享第四弹 白百合鲍三娘
下载原图
相关图片
《真三国无双6:猛将传》美化mod分享到第30弹 .
真三国无双8专区_真三国无双8中文版下载,mod,修改器,攻略,汉化补丁
无双真三国无双8实况攻略张春华传第3期
真三国无双8女性角色mod版
真三国无双8整合最新mod,新人推荐.
真三国无双7with猛将传孙尚香蓝色盔甲黑丝装mod
为你推荐
2020独一无二的微信蓝色女生头像 1/10张图片 女生图片 漂亮图片 清新
做过 粉红米饭 #午餐2014年6月24日# 红米预先浸泡5小时,然后以大
岳阳华容怀乡一中学女生遭同学踩头殴打
【限·时·秒·杀】s4迷你特工队玩具兽王力量福乐狮王变形机甲人偶
雷克音乐:架子鼓的基础乐理|五线谱|八分音符|架子鼓|节奏型|音符
雨棚别墅阳台屋檐家用农村户外防雨小院子门凼祡 白色/平米 设计效果
148㎡现代简约三居装修案例_效果图_土巴兔装修网
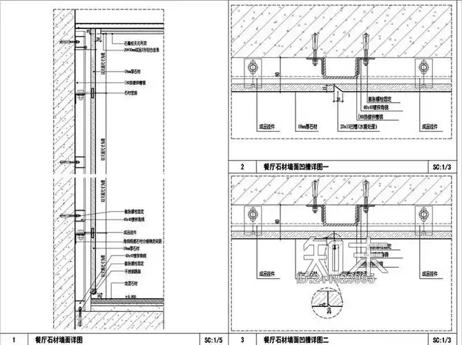
客餐厅石材墙面干挂节点大样施工图下载