图知网
搜索
首页
热门推荐
图片分类
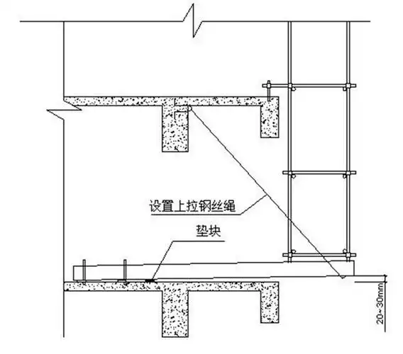
悬挑脚手架的要求 哪本规范有
下载原图
相关图片
悬挑结构处的悬挑梁布置
工程计价,悬挑梁钢筋算量问题(计价角度而非设计施工角度)
某悬挑梁节点构造详图
悬挑梁钢筋伸出梁
[分享]阳台悬挑梁增加构造柱的作用资料免费下载
悬挑梁内部钢筋怎么设置还有长度附图!
为你推荐
汉字笔画名称田字格练习表
魔道祖师q版
插画女生
灌篮高手仙道壁纸锁屏
话红楼梦王夫人的大丫环彩云偷盗玫瑰露的心理有点奇异
新鲜食材西芹美食摄影图
楼梯鞋柜 - 热门商品专区
伊索双簧双簧管管乐器胶木乌木木管镀银按键半自动双簧管