图知网
搜索
首页
热门推荐
图片分类
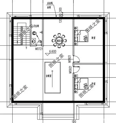
农村三间两层半房屋平面图砖构的!
下载原图
相关图片
100平小面积三层实用户型 二间三层农村自建房设计二层半房屋352
别墅二层半户型图展示
琴琴欧式别墅设计图纸三层两间小洋楼二层半带阳台经济型自建房屋
新品三层别墅设计施n工图纸农村自建两层二半小洋楼房间小户型楼
农村二层半楼房设计图屋顶大露台休闲赏月
设计功能: 一 层:客厅,餐厅,厨房,卧室,卫生间,储物间; 二 层:主卧
为你推荐
卡通动漫头像黑暗高冷
港媒曝出:张柏芝已秘密领证,丈夫为身价上亿的富豪,谢霆锋发文祝她
杯装奶茶的简笔画怎么画?
着怎样的重要意义(广州市天河区著名地标建筑,曾经是中国大陆第一高楼
迈克尔·杰克逊私人摄影师:你不知道的流行乐之王
发挥你的想象力来一锅干锅吧
送男生的花束酒花束创意花束
女枪手阿冷上线,完美身材引围观,网友:这是用的15倍镜吗?