图知网
搜索
首页
热门推荐
图片分类
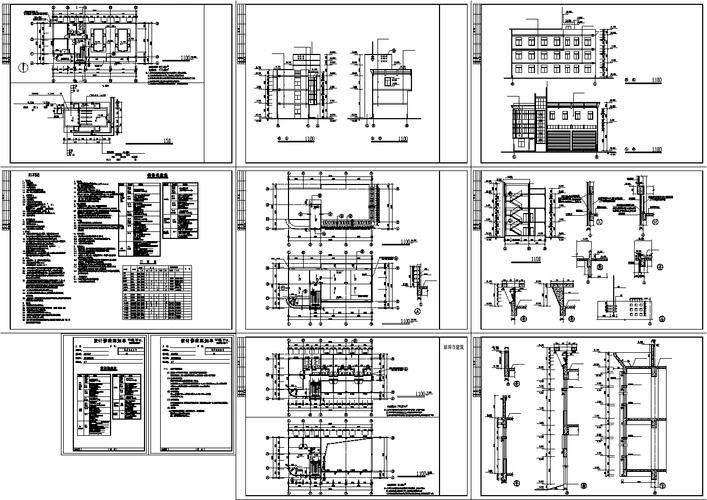
某村级垃圾站cad详细设计图
下载原图
相关图片
地埋式垃圾智能分类收集站
某地区二层垃圾转运站方案设计cad施工图
小区垃圾站
某地小型垃圾中转站建筑设计图
垂直压缩垃圾中转站工艺cad图纸
垃圾转运站设计图纸
为你推荐
首页 手机壁纸 卡通 熊本熊可爱卡通高清手机壁纸图片
北欧简约大号透明玻璃花瓶水培百合富贵竹鲜花插花客厅家用摆件
可爱的黄色卡通弯月睡觉的月亮762306png图片素材
伦敦标志性建筑大本钟非主流唯美意境桌面壁纸(一)
吊带上衣露纹身韵味十足,40岁身家超40亿_吴迪_广东宏远队_篮球季后赛
艾草_简笔画图片大全
专题美赞臣无乳糖奶粉
可爱的耶稣拿着羊和儿童手绘插图