图知网
搜索
首页
热门推荐
图片分类
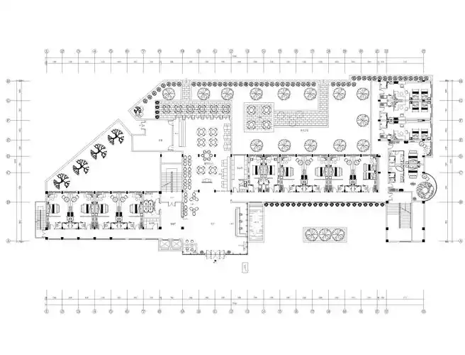
酒店平面图研讨!好的想法和方案,一经采用给予db奖励!
下载原图
相关图片
上海戏剧主题酒店之一层平面图
某酒店一层平面图
霁月秋温泉酒店
花园酒店项目全套施工图(附效果图 材料表)
大型酒店一层平面施工图施工图下载
东莞东海龙湾大酒店
为你推荐
仙气古风动漫女生头像4
浪漫天空户外遮阳伞摆地摊太阳伞大号庭院四方伞长方形沙滩大雨伞
植物大战僵尸图片
时装周街拍 | 皮衣夹克合集_女神_亮点_经典
可爱闺蜜头像(五)一人一半 无水印
舞蹈儿童芭蕾舞练功后背软网连体女童开裆表演民族服装
粉墙黛瓦,飞檐翘角.
田黄石萝卜纹特征图及表现?