图知网
搜索
首页
热门推荐
图片分类
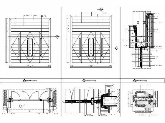
平开门-四扇平开门2
下载原图
相关图片
会议室四扇平开门详图
会议室4开门资料下载-会议室四扇平开门详图
会议室四扇平开门设计图
木质玻璃平开门(四扇)
平开门配置
1,单扇平开门,窗
为你推荐
exo logo
画册封面简约灰色几何元素书籍封面背景
我亲爱的傅先生
来自oppo主题商店一个人旅行壁纸孤独背影女生文艺小清新
写美篇坐落于枇杷山麓,嘉陵江畔张家花园的重庆巴蜀中学,依势而建
马保国语录/排版练习|平面|其他平面|拖延橙子 - 原创作品 - 站酷 (zc
因未能提交年度报告瑞幸咖啡收到纳斯达克退市通知
女英雄泳装系列壁纸第1期海滩边的不知火舞姐姐