图知网
搜索
首页
热门推荐
图片分类
电动麻将机主板图
下载原图
相关图片
棋牌室可以控制麻将机吗?
我的美篇
跟一下!
【已开奖】回顾2017年~展望2018年~21电源送好礼
美篇
四口麻将机维修图解
为你推荐
白百何一指禅的炼成 看过图片你就知道她本"性"有多豪放_网易订阅
游戏王高清卡图系列-伊西丝·伊修达尔的卡组
珊瑚豆只开花不结果?试试这些方法吧!
萌娃- 堆糖,美图壁纸兴趣社区
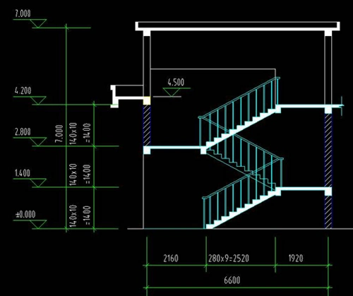
三跑楼梯优缺点有哪些
影视剧女明星掐脖子镜头汇总
油茶籽手绘素材
宝马mini(英国的微型车品牌)_尚可名片