图知网
搜索
首页
热门推荐
图片分类
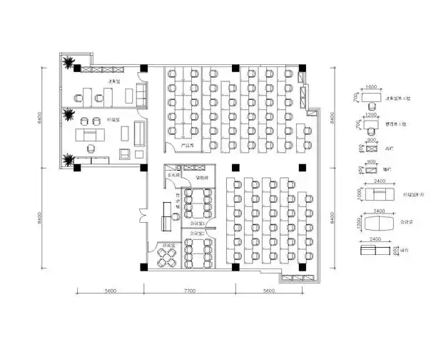
项目地址|南宁富雅国际中心项目面积|300平米设计团队|木石空间建筑
下载原图
相关图片
300平米工业办公室设计风格
文化传播公司300平简约中式办公室装修设计案例
300平米,互联网公司办公室平面布局设计
超设计感门头300平办公室
个无影棚~如果有摄影需求就很方便了~整个场地400平~实际有300多平
3000平办公室装修设计方案
为你推荐
凯千向 世界第一公主大人_哔哩哔哩 (゜-゜)つロ 干杯~-bilibili
机械钟表齿轮轴承运动动画
汉服 #古风 #古城夜景#洛阳夜景 #红衣古装 - 抖音
双子座是一个精明的星座,以敏捷灵活的思维和多才多艺的天赋而著称.
耿钢琴谱 第1页
胡老师1现代作家写意画四尺斗方花鸟_花鸟_国画_装饰作品_园圆堂
临摹作品-伊蕾娜动漫素描原创作品-触站
卧室一角|插画|艺术插画|cathychin_原创作品-站酷zcool