图知网
搜索
首页
热门推荐
图片分类
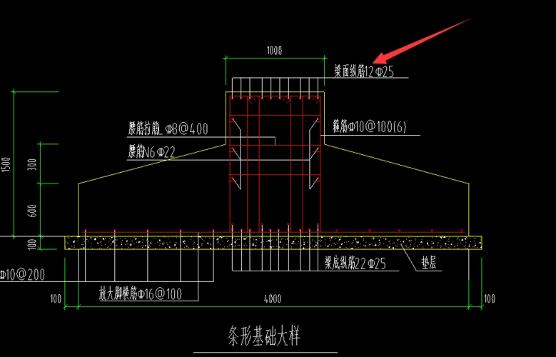
条形基础详图
下载原图
相关图片
分享柱下条形基础配筋详图资料下载
请教柱下条形基础配筋问题
柱下钢筋混凝土条形基础
条形基础与梁
条形基础
带梁条形基础绘制
为你推荐
动漫女头|双马尾女孩
《寂静岭:暴雨》超逼真cosplay
肖战成立工作室logo设计亲自上阵网友省了20万
生死瞬间,合肥民警34楼顶奋力一拉!
《哪吒之魔童降世》哪吒单人高清,收集发现美的事物,搜寻素材,激发
开拓神秘岛前期宠物推荐
四核强悍平板 三星galaxy note 10.1开箱
事关自媒体微信微博抖音快手集体公告