图知网
搜索
首页
热门推荐
图片分类
防治尘肺病保护劳动者身心健康
下载原图
相关图片
"坚持预防为主,守护职业健康"——信阳市中心医院职业病门诊正式开诊!
化工厂工人健康指南:预防职业病
守护职业健康你我同行
(图表·漫画)守护职业健康
【安全生产月】职业健康防护系列漫画
(图表·漫画)〔医卫〕保障劳动者健康_危害_治理_新华社
为你推荐
"小李子"莱昂纳多·迪卡普里奥的电影,哪一部"演技"最好?
孙艺洲吕布众望所归
大玉儿传奇娜木钟把海兰珠推到河里想让她死娜木钟真狠心
门卫设计图__psd分层素材_psd分层素材_设计图库_昵图网nipic.com
沧桑的中国大叔头像图片【点击鼠标右键下载】
经过葫芦岛去往建昌绿皮小火车即将恢复开行
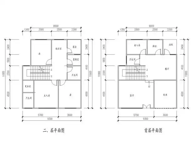
两层农村别墅最新平面设计图片
普罗米吊顶