图知网
搜索
首页
热门推荐
图片分类
[浙江]儿童公园及周边建筑给排水图纸-建筑给排水施工图-筑龙给排水论
下载原图
相关图片
厨厕卫生间大样图_卫生间,厨房_土木在线
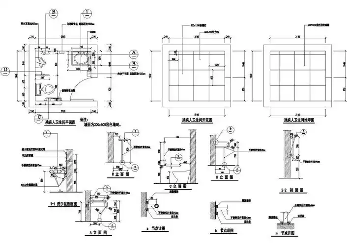
残疾人卫生间 厕所_公共厕所_土木在线
卫生间剖面大样_筑龙网
残疾人卫生间节点详图 - 资料下载 - 土木在线
二平米卫生间设计_筑龙网
卫生间大样_word文档在线阅读与下载_免费文档
为你推荐
动漫卡通童书小马宝莉 送你18个好习惯4 说话好习惯 说话好习惯
喜剧之王:尹天仇深入剖析初恋的感觉,柳飘飘回想起初恋,星爷被打懵圈
镜花水月古典韵味旗袍效果图合集
艾克斯奥特曼(大空大地)全形态变身!
三观不正,人品
gingersnaps adjustable length
的项羽,而张可颐与吴美珩分别扮演胸怀壮志的吕雉与性格坚韧的虞姬
温水里的青蛙真的会坐以待毙吗?科学实验告诉你寓言不可信