图知网
搜索
首页
热门推荐
图片分类
雪后居庸关关城北国风光千里冰封万里雪飘
下载原图
相关图片
当万里长城遇见了雪,宛如一幅巨美的山水画,北国风光,千里冰封 - 抖音
承德金山岭长城.北国风光千里雪飘全诗:北国风光,千里冰封,万 - 抖音
听雪落下的声音赏北国风光
【北国风光】
北国风光雪景
赏北国风光不止哈尔滨大美清涧等你来
为你推荐
夫妻性生活怎么做容易怀孕,这几个姿势你一定要知道
ohm王辰熠欢乐向剪辑《问题小孩王辰熠》_哔哩哔哩 (゜-゜)つロ 干杯
豆子怎么吃都不胖啊,这身材也太好了 一把子期待大唐小吃货2|李子璇
澳门开马开奖直播,澳门123开奖资料,澳门彩库网,2021年澳门最快开奖
小周的病历. 受访者供图
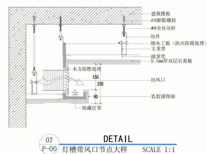
室内设计中七种常见吊顶施工图节点大样
真维斯纯棉polo衫男 夏装 男装短袖翻领t恤青年修身保罗衫
1米草缸入坑日记 - 水草造景 - cta南美水族