图知网
搜索
首页
热门推荐
图片分类
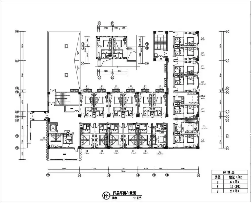
旅馆装修平面布置图酒店空间设计图片赏析
下载原图
相关图片
魔改|多层酒店客房平面布局总图·酒店设计 酒店设计平面布局总图
平面布置图
天隆宾馆-天隆宾馆 -三田装潢设计
酒店平面布置图宾馆平面图套房客房大堂设计方案图片 cad 施工图
宾馆平面布局图
宾馆酒店建筑设计平面图2
为你推荐
肖兔崽紫cp粉狂喜,杨紫被曝携父母与肖战吃饭,两方粉丝态度明确|李现
国民闺女关晓彤运动装打扮棚拍定妆原素材底片,什么水平?
川崎h2r重机大排量摩托车
斗鱼吃鸡女主播呆妹儿小霸王个人写真福利套图
杨荫榆启程前往日本,随后先入青山女子学院学习,后进入东京女子高等
一月走园——红蓝绿广场
【创文系列】绘经典诗文,品传统文化——沙坪街道第五小学三年级古诗
新品高端茶水分离泡茶杯高档双层隔热玻璃杯男女保温便携防摔小巧迷你