图知网
搜索
首页
热门推荐
图片分类
11zj401639页
下载原图
相关图片
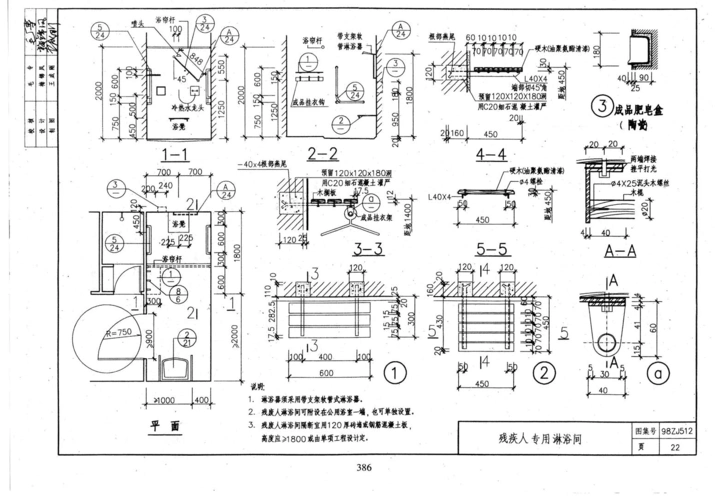
15zj512 卫生间和厨房
j502民用建筑隔声与吸声构造15zj512卫生间和厨房15zj521吊顶和轻隔断
高清15zj512卫生间和厨房
15zj512 卫生间和厨房
98zj512共用厨房卫生间设施
求15zj001图集一份
为你推荐
主要常驻嘉宾有:沈腾,贾玲,华晨宇,关晓彤,宋亚轩.
朱亚文首尝光头造型让人惊喜!斯文儒雅气质佳,帅成行走的荷尔蒙插图2
微表情读心识人术
相关表情包
赣州华坚科技职业学校2022年排名-升学乐中职网
又美又飒!空军西安飞行学院完成"山鹰"单飞的女飞行员
【华为 华为nova7se 5g 乐活版】 幻夜黑 【报价 图片 参数 价格】
砖瓦厂民工周兴东的门诊病历