图知网
搜索
首页
热门推荐
图片分类
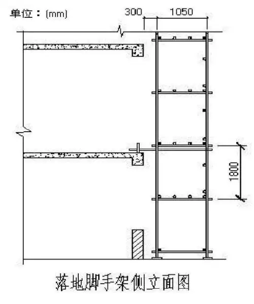
[四川]基坑工程安全施工方案(双排脚手架)
下载原图
相关图片
门式外墙脚手架
外墙脚手架搭设示意图 依建筑物四周用?48×3.
[江苏]框架剪力墙结构工程脚手架施工技术方案
脚手架技术手法不到位,危险增加99%你细品
落地式卸料平台示意图16脚手架施工16.
剪力墙结构高层住宅工程外脚手架施工方案
为你推荐
人类消亡计划人类消亡计划书
悼念逝者安息一路走好黑色简约公众号首图
男士外套韩版潮流春秋装立领夹克本命年红色衣服简单休闲短款褂子
降e小调分解和弦琶音四个音孩子们的钢琴音阶和弦与琶音2
韩国舞蹈背景dj晚会led背景大气紫色年会动感跳屏灯vj夜店视频素材
欧铂尼木门包边窗套线条包窗口包窗套家用现代窗户外墙窗套免漆
第六版10元瑞士法郎正面的欧拉肖像2013年4月15日,谷歌doodle纪念欧拉
1530 光纤激光切割机用于金属的板材和管材