图知网
搜索
首页
热门推荐
图片分类
退货工作流程与工作标准
下载原图
相关图片
客户退货处理操作流程
客户退货处理流程图
退货流程图
退换货流程
退货处理流程图
退货流程图分享,用图示梳理退货流程
为你推荐
被杨紫惊艳了,穿淡蓝色露肩礼服配高跟鞋,27岁美成小公主
211.黄子韬头像(色散滤镜)
快70岁的林青霞穿粉裙不违和看着温婉大气就是搭配让人看不懂
小腿黑灰羽毛脚环纹身图案
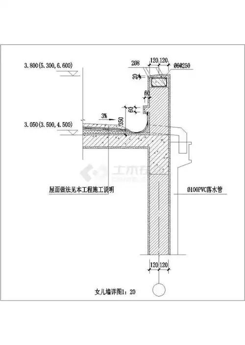
某女儿墙cad详细设计图大样
佛教小百科集一辑17佛教的手印中国社会科学出版社2003pic55
新年装修190大坪新房设计婚房大客厅伏羲壁炉装饰电视柜效果|卧室装饰
正版猪猪侠之竞球小英雄元灵卡全套铁拳虎元灵锁变形手表玩具男孩_不