图知网
搜索
首页
热门推荐
图片分类
22g101最新国标图集电子版已到手快夸我
下载原图
相关图片
16g10117g10118g901高清电子版建筑图集限时分享
六大变化,22g101系列图集变化简单对比!_节点_构造_钢筋
他来了18g90117g10116g101带着图集来了
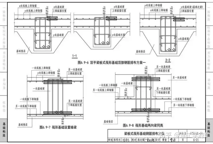
条形基础,筏形基础,桩基础) 图集内容包括现浇钢筋混凝土独立基础
他来了,18g901,17g101,16g101带着图集来了,还不速速领回家
他来了,18g901,17g101,16g101带着图集来了,还不速速领回家
为你推荐
王珞丹亮相活动 气质太美了,网友:这双腿长得不科学了
popmart泡泡玛特pucky毕奇甜甜系列手办盲盒公仔不支持退款预售tmall
十分钟搞定的煲仔饭冬日美食必备
虎牙主播韩涵被前女友实锤成渣男引起众怒寒夜审判渣男却失败了
工资晚发2天员工告上法庭公司被判赔48万元
俄罗斯现在还有布尔什维克党吗?他们还可以执政吗?为什么?
空调内外机连接必须用铜管吗?
韩国健身女神韩国健身女神文世琳三围个人资料e杯上围呼之欲出韩国