图知网
搜索
首页
热门推荐
图片分类
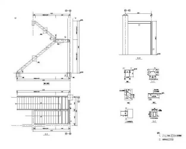
楼梯的细部构造有哪些?
下载原图
相关图片
安全设施现场平面布置图等,可编辑使用|cad|平面图|详图_网易订阅
99设计师都需要的楼梯cad节点详图合集
楼梯详图一般分建筑详图与结构详图,应分别绘制并编入建筑施工图和
楼梯的常用数据与计算方法(值得收藏)
楼梯这么做是错的?
钢楼梯结构图纸资料下载-多种钢结构楼梯施工图 (cad)
为你推荐
古力娜扎薄纱刺绣礼裙浪漫写真图片
汤臣一品
旅行者 2 号拍摄的天王星照片.
优质女生真人ins风头像高清唯美的女头ins正脸图片
历史上开封水患不断,多次被黄河淹没.实习生张扬摄
数字设计 卡通字体 立体矢量
电磁吸盘厂家起重机电磁吸盘
传统古典手绘麒麟神兽矢量白描中国画