图知网
搜索
首页
热门推荐
图片分类
下载原图
相关图片
星越l #双联屏壁纸
黛蓝金灰双拼色 4k高清无损手机壁纸
商师话题##可爱壁纸
双屏拼接壁纸
高清全面屏双屏壁纸
双屏壁纸
为你推荐
军事,军事,f-5战斗机壁纸
【 nct dream - hello future 女声翻唱 | "绚丽斑斓的未来狂想家"】
用户总量正式突破1亿大关,汉口银行党委副书记,行长刘波发来寄语祝贺
仓鼠吃什么?看看你选对了吗!
下图为北美洲局部地区陆地自然带分布图完成下面小题
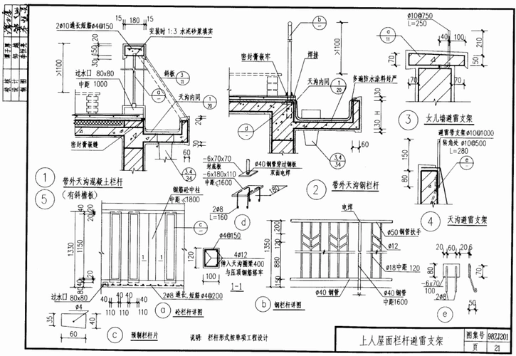
98zj201平屋面图集pdf格式高清无水印
皇上围城狩猎,小燕子当信使,却被五阿哥一箭刺中
占全国钨矿总储量的71%,但由于一些大型,超大型钨多金属矿床的矿石