图知网
搜索
首页
热门推荐
图片分类
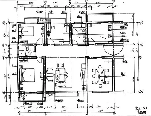
关于建筑平面图的计算.急急
下载原图
相关图片
《建筑装饰制图与识图》优秀作业展
建筑施工图识图基础解析
工匠培训教材《建筑识图》
干工程2个月工资就翻1倍找这900页建筑识图教程费的劲算是值了
建筑识图总合集:从小白变成工程大佬有它就够了,简直太全面了!
室工1901《建筑装饰制图与识图》优秀作业展
为你推荐
香港实至名归的影帝,好男人—刘青云
王者荣耀手绘可爱q版人物头像图片
组图:美人如玉——韩国80后最美的女演员们
网红女生女孩生日蛋糕装饰软陶小美女年轻小姐姐永远18岁软胶插件
羊头矢量
11zj111变形缝建筑构造b-10页--楼地面变形缝装置(三)_11zj111图集
加油,奥利给表情大全